コートハウス・ニュートン 107号室 流山市東深井[マンション]

コートハウス・ニュートン 107号室 流山市東深井[マンション]

マンション[流山市東深井]

HODAKA - 穂高賃貸センター

物件詳細

コートハウス・ニュートン 107号室 流山市東深井[マンション]

 

コートハウス・ニュートン 107号室 流山市東深井[マンション] の物件詳細ページです。

物件種別: マンション

お問い合わせ番号:N1000001235

間取り(面積)

1R

( 19.42㎡ )

賃料(管理費等)

3.4万円

( 3000円 )

交通: 東武野田線 運河駅 徒歩1分

敷金/礼金: - / 1ヶ月

保証金/敷引/償却金: - / - / -

所在地: 流山市東深井

築年月: 1994年4月

ポイント

理科大生様大歓迎!新入生様の春の入居予約受付中!
国公立併願受験の方も、合格発表日まで無料で仮予約可能です。遠方の方は、ご希望に合う物件資料をメールやご郵送でお送りいたしますのでお気軽にご連絡下さいませ。
当社は、この物件より徒歩圏内ですので、物件へのご案内はもちろん、ご入居後のご対応も迅速に対応させていただきますので、お住まいになってからもご安心いただけます。
■東京理科大学提携店■地域最大の管理・専任物件数を取り扱っておりますので、当社1社で全て完結出来ます!!

問い合わせ(無料)

TEL: 04-7178-3200

お問い合わせ番号: N1000001235

QRコード

資料請求などはこちら

問い合わせ(無料)

TEL: 04-7178-3200

お問い合わせ番号: N1000001235

セールスポイント

特徴 デザイナーズ,外壁コンクリート,始発駅,駅まで平坦,駅前,平坦地,ディンプルキー,保証人(不要),カード決済可(入居時費用)
設備 敷地内ゴミ置き場,コインランドリー,IHクッキングヒーター,バス有,シャワー,トイレ有,エアコン,家電付,冷蔵庫,照明付き,全室照明付き,CATV,電話回線,高速ネット対応,ネット専用回線,光ファイバー,CATVインターネット,TVインターホン,給湯,ガス給湯,冷房,暖房,フローリング,クローゼット,シューズボックス,玄関収納,収納有,ガス(プロパン),下水(公共下水),水道(専用メーター),電気
光ファイバー エレベーター
天井高 空調 1基
部屋外設備 ベランダ
駐車場 駐車場:近隣駐車場 5000円/月~ 駐車場まで50m 駐輪場:有 バイク置き場:有
周辺施設 大学・短大:東京理科大学野田キャンパス. 近隣 359m
コンビニ:ファミリーマート(運河駅東口). 近隣 50m
ドラッグストア:ドラッグセイムス 運河店. 近隣 254m
レストラン:壱角家 近隣 291m
郵便局:新川郵便局 近隣 393m
スーパー:Big-A 流山東深井店. 近隣 451m
ショッピング施設:TSUTAYA 流山店. 近隣 513m
レストラン:マクドナルド. 近隣 561m
スーパー:コープみらい コープ東深井店. 近隣 572m

物件概要

物件名 コートハウス・ニュートン 107号室
物件所在地 千葉県流山市東深井400-2 周辺地図
交通機関 東武野田線 運河駅 徒歩1分
東武野田線 江戸川台駅 徒歩25分
東武野田線 梅郷駅 徒歩30分
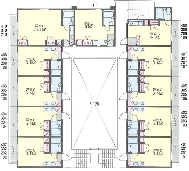
間取り詳細 洋室(7.5畳)
専有面積 19.42㎡
所在階/地上階数 1 / 4 部屋向き
建物構造 鉄筋コンクリート 築年月 1994年4月
総戸数 41
賃料 3.4万円 管理費等 3000円
敷金 - 礼金 1ヶ月
保証金 - 更新料 新賃料 1ヶ月
積増し敷金 - 積増し理由
その他一時金 鍵交換費:22,000円 消毒費用:16,500円 その他費用 〇留学生:敷金1ヵ月
損害保険 有 損保名称:少額短期保険 料金:20000円 損保期間:24ヶ月 
契約形態 普通借家契約 期間 契約期間:2年
保証会社 必須 (日本賃貸保証) 初回保証料:総賃料50%(最低保証料25.000円)更新時:10.000円 送金手数料330円/月  留学生:敷金1ヵ月 保証人代行 必須
法人契約 相談
現況 入居時期 即時 
入居条件 ペット(不可),楽器等の使用(不可),学生(限定),性別(不問),単身(限定),法人(相談)

その他

取引態様 仲介元付(専任) 自社管理番号 N1000001235
情報更新日 2026年3月17日 次回更新予定日 2026年4月16日
不動産会社コード 10104 物件管理コード 1121282047990000005106
  • ※間取りの「S」はサービスルーム(納戸)です。
  • ※QRコードは(株)デンソーウェーブの登録商標です。

資料請求などはこちら

問い合わせ(無料)

TEL: 04-7178-3200

お問い合わせ番号: N1000001235

お問い合わせ先:株式会社穂高賃貸センター 理科大店

所在地 : 千葉県流山市東深井409-11
TEL : 04-7178-3200
免許番号 : 千葉県知事(7)第12774号
加盟団体 : (社)全国宅地建物取引業保証協会

この部屋を見学予約

ホームへ戻る